Arq
Ph
CV
Contacto
Arq
Ph
CV
Contacto
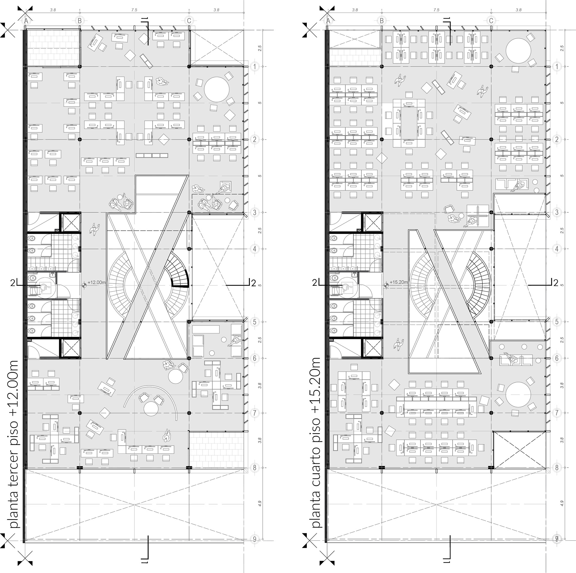
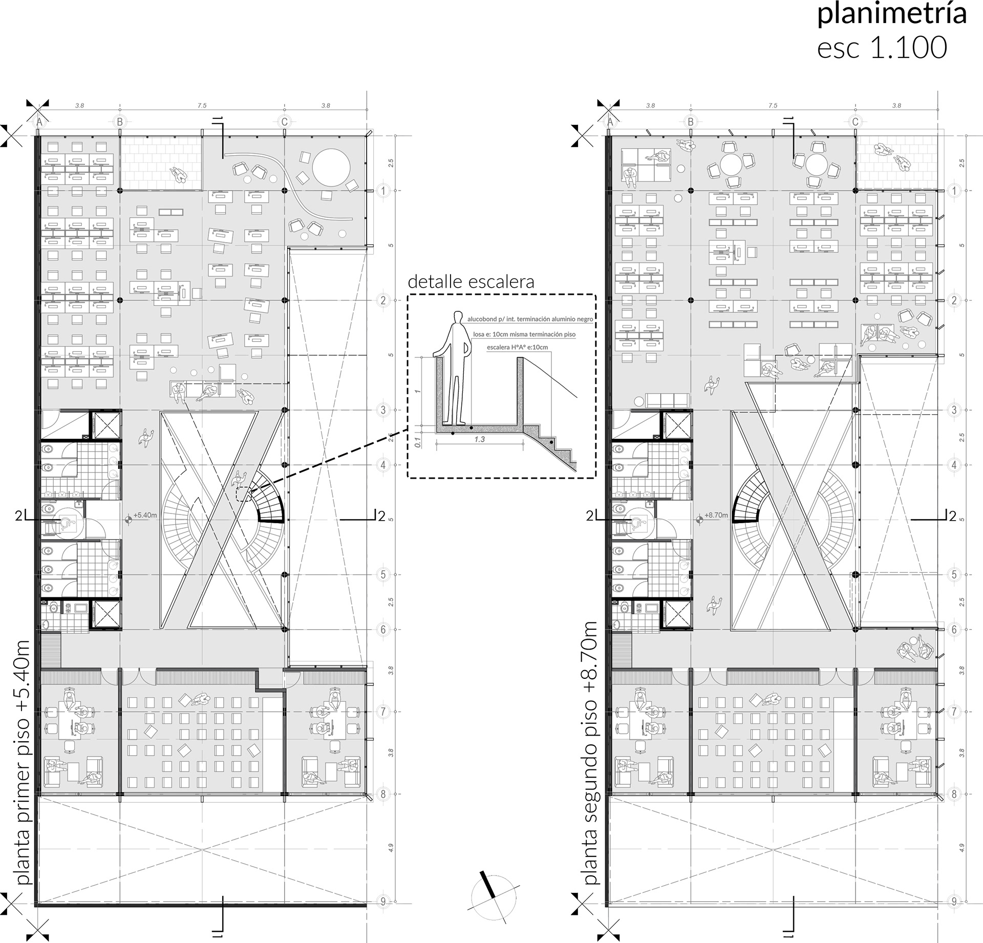
Oficinas Co-working.
Croquis preliminares
↑
Back to Top