Arq
Ph
CV
Contacto
Arq
Ph
CV
Contacto
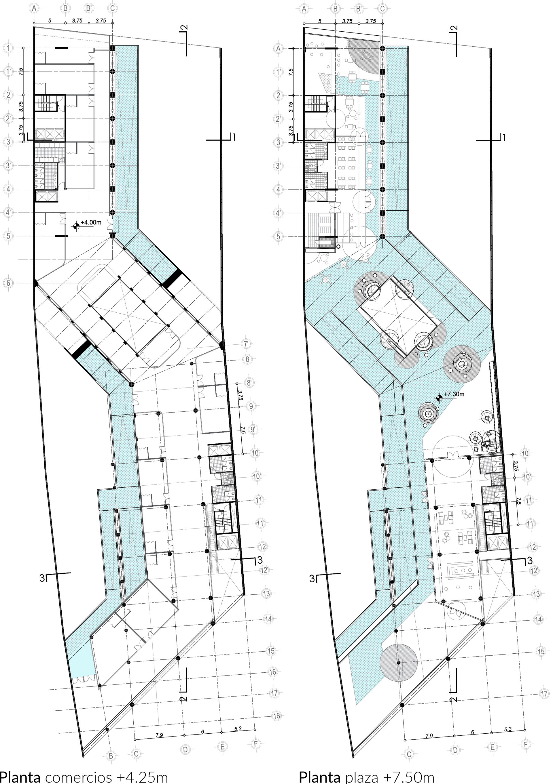
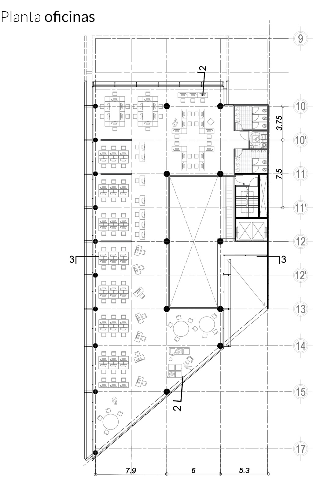
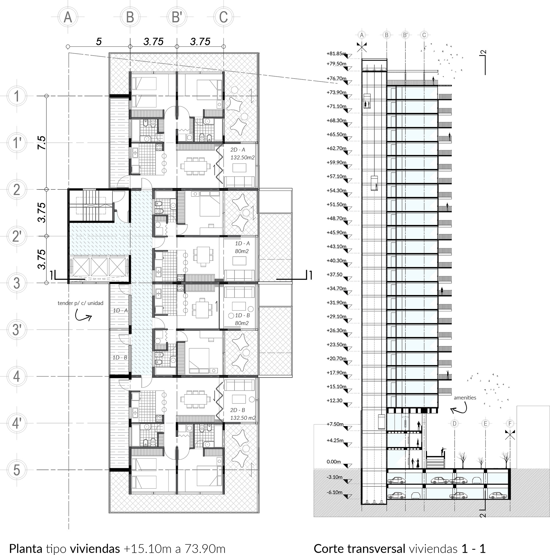
Intervención edilicia de usos múltiples.
↑
Back to Top