Arq
Ph
CV
Contacto
Arq
Ph
CV
Contacto
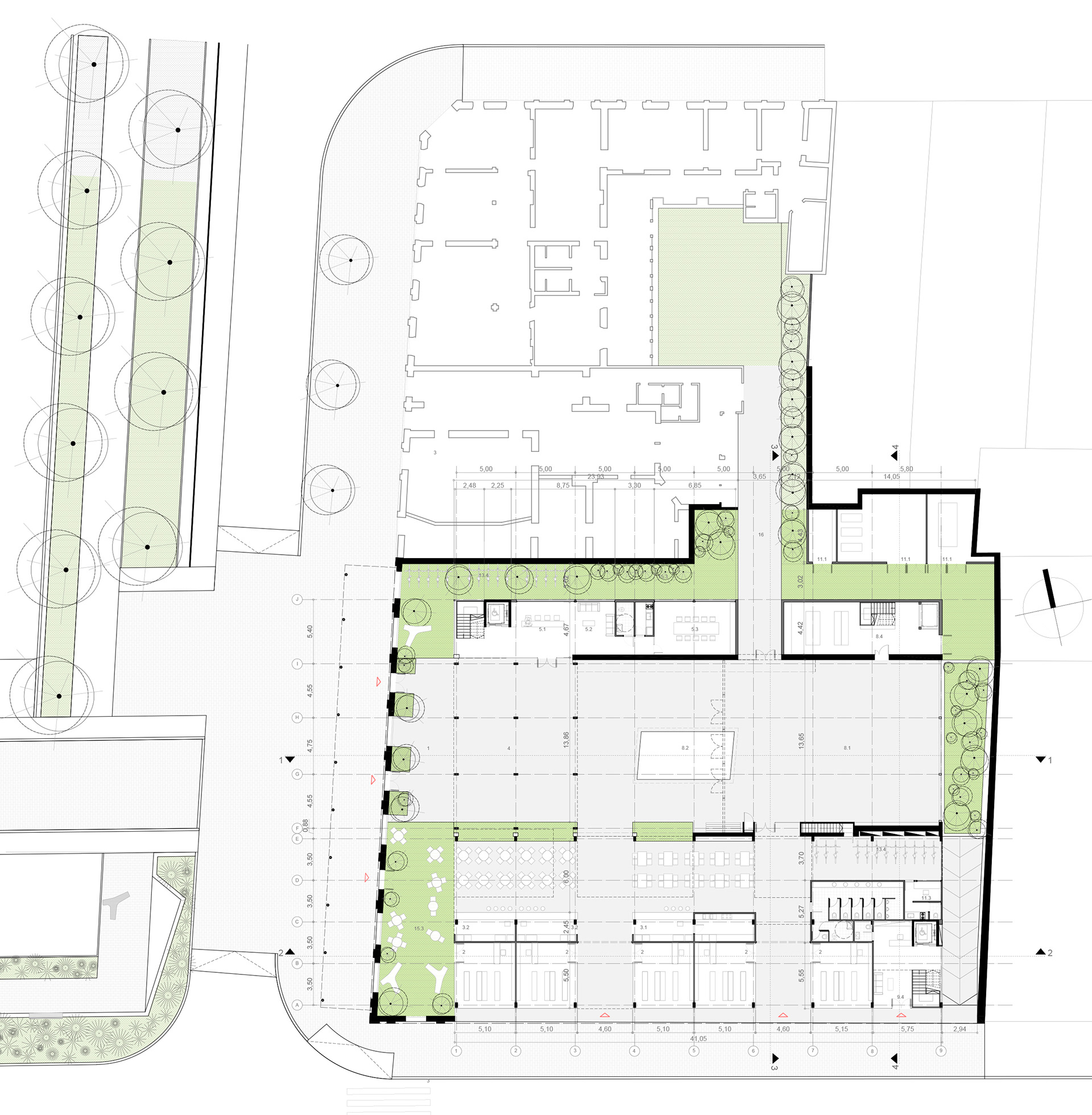
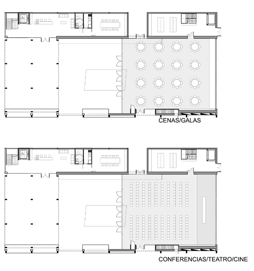
Edificio para la innovación y el desarrollo sustentable
Esquina 9 de Julio y Belgrano, Rafaela, Santa Fe, Argentina.
Pal
↑
Back to Top